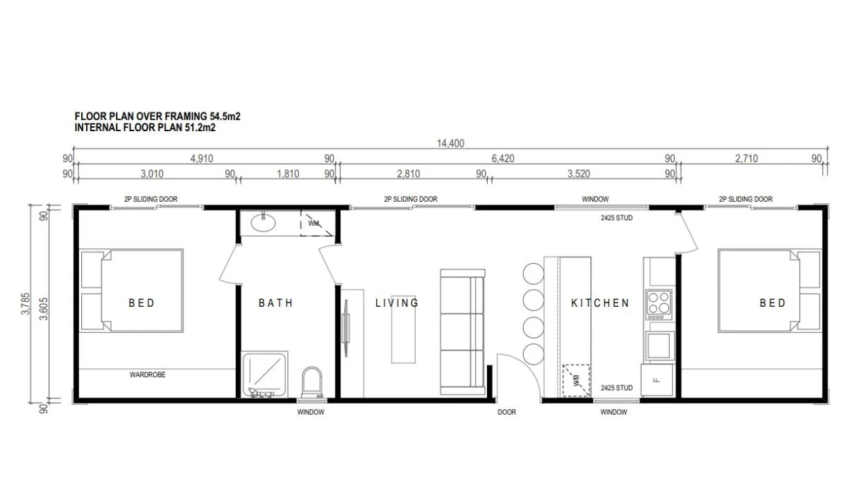
Two Bedroom Pod Sep 11 Written By Cheril Barber 3800 x 14400$240,000 inc GST * Download the Two Bedroom Pod Floor plan here *Prices are subject to change without notice Contact Landon Cheril Barber
Two Bedroom Pod Sep 11 Written By Cheril Barber 3800 x 14400$240,000 inc GST * Download the Two Bedroom Pod Floor plan here *Prices are subject to change without notice Contact Landon Cheril Barber