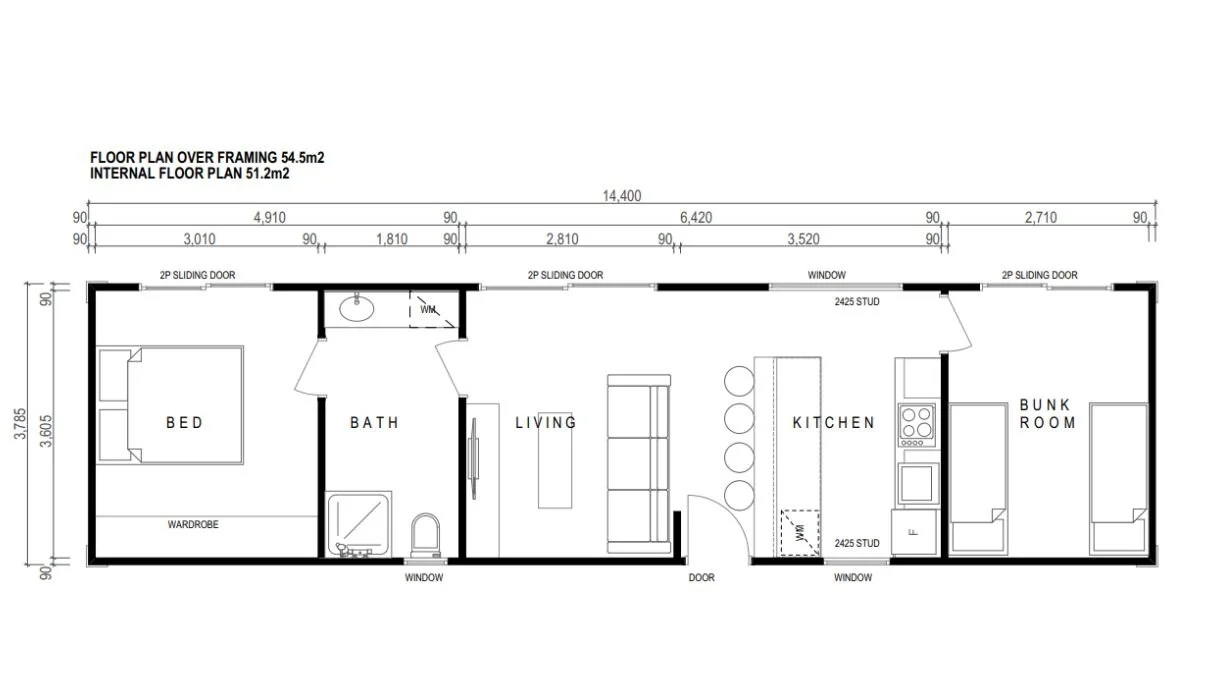
Bach Pod Sep 14 Written By Cheril Barber 3800 × 14400$240,000 inc GST * Download the Bach Pod Floor Plan here *Prices are subject to change without notice Contact Landon Cheril Barber
Bach Pod Sep 14 Written By Cheril Barber 3800 × 14400$240,000 inc GST * Download the Bach Pod Floor Plan here *Prices are subject to change without notice Contact Landon Cheril Barber